Boshuis Blankwater
Op de bessenplantage Blankwater in Swalmen heeft Jasper Smits Architecten in samenwerking met RAUMKULTUR de meest recente toevoeging ontworpen: Boshuis Blankwater. Het betreft een groepsaccomodatie met 15 ruime slaapvertrekken.
Het houten boshuis maakt deel uit van een landgoed van 62 hectare. Het landgoed omvat een bos, grasland, een blauwe bessenplantage en een lunchcafé: Plantage Blankwater.
De unieke locatie zorgt voor een geweldige beleving van de plantage en bosrijke omgeving. Het zwarte Boshuis van 730 m2 heeft zich bescheiden ingenesteld in een oksel aan de rand van het bos. Om het gebouw te bereiken loopt de bezoeker vanaf de parkeerplaats, door het bos naar het gebouw. Het gebouw ontneemt eerst het volledige zicht op de plantage. Eenmaal binnen opent zich het wijde uitzicht over het landgoed en de ruggen waar de blauwe bessenplanten op groeien.
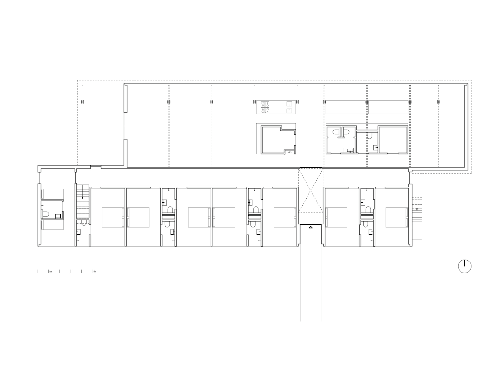
Het gebouw bestaat uit twee volumes. Samen vormen de twee volumes een gebouw dat refereert aan de schuren in de directe omgeving die vaak van een aanbouw zijn voorzien. De twee volumes, met ieder hun eigen constructieprincipe verdelen ook het programma van de groepsaccommodatie in twee delen. De gemeenschappelijke ruimte bevindt zich in één volume gericht op de bessenplantage, terwijl het andere volume de slaapvertrekken herbergt. De slaapvertrekken op de begane grond richten zich op het bos, terwijl de slaapvertrekken op de eerste verdieping op de lucht en de bessenplantage georiënteerd zijn. Elke ruimte heeft zo zijn eigen unieke relatie met de prachtige natuurlijke omgeving.
De gangen zijn ingetogen met daglichttoetreding en karakteristieke verlichting als intuïtieve begeleiders naar de verschillende ruimtes in het gebouw.
De gemeenschappelijke ruimte dient zowel voor grote als kleinere groepen een fijne plek zijn. Het dak rust op gelamineerde liggers die op dubbele kolommen staan. Deze kolommen staan bijna twee meter van de gevel en maken de grote zaal op deze manier een stuk intiemer. Het houten dak dat schuin oploopt zorgt voor zowel intimiteit als ruimtelijkheid.
RAUMKULTUR is als collectief van ontwerpers/makers verantwoordelijk voor het interieurontwerp en de levering van de (maatwerk-)inrichting. In de gemeenschappelijke ruimte zijn de functionele maatwerken als keuken, kasten en hoge tafels in de studio ontworpen en geproduceerd in eigen werkplaats. De wandlampen, die zijn geïnspireerd op planten, zijn als creatief maatwerk uitgegeven aan een van de ontwerpers/makers binnen RAUMKULTUR.
In de slaap- en badkamers is de lijn van maatwerken doorgevoerd in de bedhoofden met verplaatsbare nachtkastjes, de schrijf-/koffertafels en de multifunctionele vanity shelfs met geïntegreerde verlichting en handdoekhaakjes in de badkamers. De heldere ontwerpen voor dit project zijn een prachtige aanvulling op het eenvoudige gebouw
Het boshuis is met minimaal budget gebouwd. Jasper Smits Architecten heeft hiertoe slimme keuzes gemaakt in materialisatie, vloeropbouw, installaties en het reduceren van het aantal aansluitingen. Zo is een zeer sober, doch elegant houten gebouw gerealiseerd. Het casco van het boshuis is volledig geprefabriceerd in hout. De zwarte houten gevel gaat mooi op in de natuur. Het stalen dak is niet voorzien van goten zodat het regenwater direct de natuur in kan stromen. Door de grote ramen verandert het gebouw in de loop van de dag, maar ook in ieder seizoen.
| Oplevering | 2025 |
| Interieur | Raumkultur |
| Fotograaf | Jeroen Musch |