CUBE - faculteit Engineering Technology
CUBE is een gestapeld werkplaatsgebouw en expo van 4.734m2 BVO voor de faculteit Engineering Technology op campus Drienerlo van de Universiteit Twente in Enschede. CUBE is ontworpen door Civic architects, VDNDP en Studio Groen+Schild, de uitvoering van WAM&VanDuren Bouwgroep en WSi Techniek. Het gebouw vormt een compacte uitbreiding van het Horstcomplex met gestapelde werkplaatsen, kantoren en flexibele practicum-ruimtes.
Expo voor ET: verzonken werkplaatsvloer als hart van het gebouw
Aan de faculteit Engineering Technology (ET) worden studenten opgeleid om technologie te ontwerpen die de wereld kan veranderen. Die betekenis is in het huidige gebouw van de faculteit ‘de Horst’ nauwelijks zichtbaar. CUBE verandert dit. Hier kun je ervaren wat de faculteit waar de faculteit voor staat.
Bij binnenkomst kijk je uit over de zeven meter hoge metaal- en laswerkplaats. Doordat de vloer 1,4 meter verdiept ligt, kijk je over de machines heen en heb je overzicht over de hele ruimte. Via een grote vide zijn ook de bovenliggende werkplaatsen zichtbaar. Beneden werken studenten en onderzoekers aan machines, boven worden prototypes gebouwd en onderwijs gegeven, terwijl buiten het landschap van de campus zichtbaar is. CUBE functioneert zo als een expo voor de faculteit.
Functionaliteit en interactie
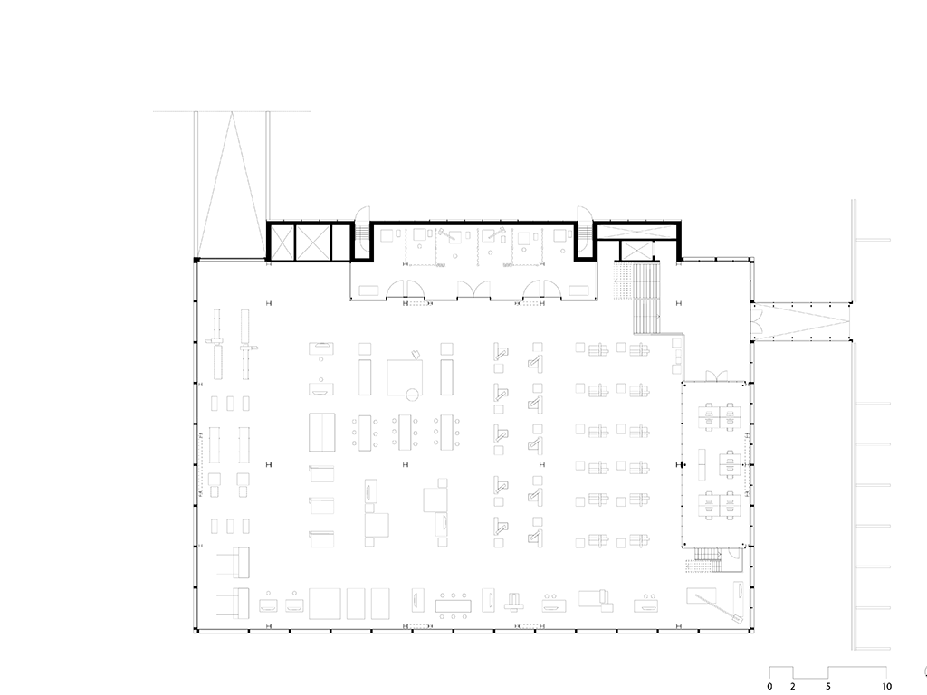
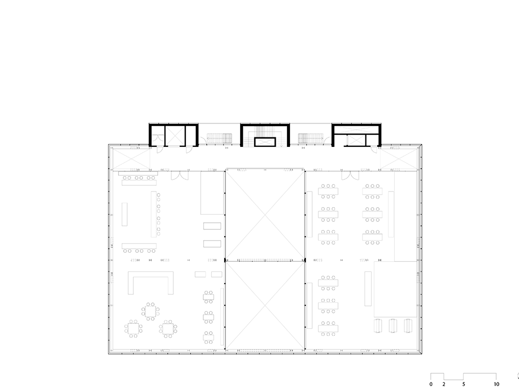
Waar onderzoek vroeger vooral afzondering vroeg, draait innovatie tegenwoordig om samenwerking. CUBE speelt daarop in door functionaliteit en interactie te combineren. Het gebouw bevat vijf werkplaatsen – voor lassen, metaalbewerking, modellenbouw en assemblage – plus circa 500 m² practica- en meetruimtes. Deze liggen gestapeld in plaats van naast elkaar, waardoor de footprint compact blijft, looplijnen kort zijn en visueel contact tussen de ruimtes optimaal is.
De metaalwerkplaats ligt in de verzonken begane grond. Aan de zuidzijde grenst het kantoor, iets verhoogd voor overzicht. Daarboven staan drie verdiepingen met luchtbehandelingskasten. De laswerkplaatsen liggen rechts, de logistieke entree met toegang voor vrachtwagens en heftrucks aan de noordzijde. Op de tweede verdieping bevinden zich assemblage- en modelwerkplaatsen, op de derde de practicumruimtes.
Verkeersruimtes, installatiekernen en opslag zijn aan de randen geplaatst als een ‘backbone’ die de vrij indeelbare werkplaatsen voedt. Vanuit hier is zicht op de grote open ruimtes. Een piramidevormig atrium brengt royaal daglicht binnen en verbindt de verschillende verdiepingen visueel. Overal zijn werkprocessen zichtbaar, alsof je onder de motorkap van de faculteit kijkt.
Constructie als architectonisch statement
De faculteit wil het gebouw per semester anders kunnen gebruiken. Grote overspanningen en vloeren met hoge draaglast maken dit mogelijk. De structuur bestaat uit twee hoofdbeuken met 14 meter overspanning en een smallere beuk voor de ‘backbone’. Stalen vakwerkspanten van twee verdiepingen beperken het aantal kolommen in de werkplaats. De driehoeken in de gevel en de CLT-kernen met liften, trappen en installaties zorgen voor stabiliteit en geven het gebouw een herkenbare uitstraling. Zo biedt de constructie een rationele oplossing voor het flexibele gebruik en tegelijkertijd een uitgesproken architectonisch gebaar dat past bij de faculteit.
Machine in het landschap
De Horst is een van de kroonjuwelen van de UT campus. De Horst, ontworpen in de jaren ’60 door Dick van Mourik, is een modernistisch ensemble van laagbouwcarré, toren en satellieten. De nieuwe uitbreiding bouwt voor op de oorspronkelijke architectuur en geeft er een eigentijdse draai aan. CUBE is vormgegeven als een nieuwe satelliet. Het kavel voor de uitbreiding was te klein voor het programma. De oplossing: een kleiner, lineair volume met een extra verdieping. Zo blijft het Horst-ensemble leesbaar als een carré met satellieten. De verzonken begane grond beperkt de hoogte van het gebouw, de drie CLT kernen verwijzen naar de kenmerkende installatiekernen van het Horstcomplex en maken het gebouw visueel smaller.
Modernisme voor een veranderend klimaat
Het exterieur is verwant aan het Horstensemble maar klimaatbewuster ontworpen. Net als de Horst accentueert de gevel van CUBE de organisatie van het gebouw. Maar anders dan de rest van het complex, ziet elke gevel er anders uit. Het gebouw is zo geplaatst, dat het zich opent naar het noordwesten. De gevels daar zijn transparant, voor zicht op het landschap, en diffuus daglicht. De zuidoost- en westgevel hebben juist een minder publiek karakter en zijn geslotener om opwarming te voorkomen.
De uitwerking is verfijnd. De begane grond bestaat uit brede vensters met diepe neggen, met zicht op de verzonken werkplaats. Als een vitrine voor Engineering Technology. De gevel is hier van hout, voor tactiliteit en textuur. Erboven hangt een strakke, glazen vliesgevel, die aansluit bij het Horstcomplex. De achterliggende stalen vakwerken zijn zichtbaar en geven het exterieur dynamiek door hun geometrische spel met de orthogonale gevel.
Sublieme functionaliteit
De architectuur vergroot de functionaliteit van het gebouw uit. In ieder detail staat dit principe centraal. Zo is er eindeloos geschaafd aan geraffineerde constructieknopen en zijn hekken, trappen en puien tot in de detail uitgewerkt.
Het materiaalgebruik is eenvoudig en helder, en passend bij de functie. Stalen spanten voor de grote overspanningen, brandwerend gecoat in blauw om de ruimtelijke structuur te benadrukken; lichtgrijze vloeren en gerecyclede PET-plafonds voor rust en lichtreflectie; glazen binnenwanden voor maximaal zichtcontact. Deze robuuste basis is aangevuld met lariks kozijnen binnen en buiten, die warmte toevoegen. Ook de CLT-kernen versterken dit. Installaties in het zicht zijn precies vormgegeven en dragen bij aan het technische karakter van het gebouw. Zo ademt het hele gebouw ‘Engineering Technology’.
| Oplevering | 2025 |
| Projectteam | Civic Architects & VDNDP |
| Interieur | Studio Groen+Schild |
| Opdrachtgever | Universiteit Twente, Enschede |
| Adviseur installaties | WSi Techniek |
| Bouwkunding aannemer | WAM&VanDuren Bouwgroep |
| Fotograaf | Stijn Bollaert |
| Adviseur bouwfysica | Nelissen ingenieursbureau (bouwfysica en installaties), Schreuders bouwadvies (constructie), Buro Loo (adviseur duurzaamheid UT) |