Campus De Hutten
Campus De Hutten, onderdeel van jeugdzorginstelling/gemeenschapsinstelling (NL/BE afhankelijk van doelgroep) De Kempen, biedt zo’n veertig jongeren een leefwereld die veel meer is dan een plek om tijdelijk te verblijven. Hier leren, sporten, wonen en ontspannen ze in een veilige omgeving en helpt een team begeleiders en behandelaren met hun ontwikkeling.
Eind vorig jaar werden het eerste nieuwe woongebouw, de sporthal en het onderwijsgebouw in gebruik genomen, een belangrijke stap in de vernieuwing van de site. In 2026 volgt een tweede woongebouw, een nieuw onthaal en de renovatie van het administratieve en logistieke gebouw. Zo ontstaat een veilige, gestructureerde campus die ruimte biedt voor beleving, eigen invulling en ontwikkeling. Jongeren en begeleiders reageren positief.
Ruimte voor beleving en eigenheid
Het ontwerp zorgt ervoor dat jongeren zich op hun gemak voelen en een brug naar een betere toekomst kunnen maken. De beleving van de jongere staat centraal. Net als andere jongeren kunnen de bewoners bewegen, voelen, ruiken en zien. Dat stimuleert hun gedachten en vermindert stress. Veiligheid en functionaliteit zijn belangrijk, maar leiden niet tot strakke, kille ruimtes.
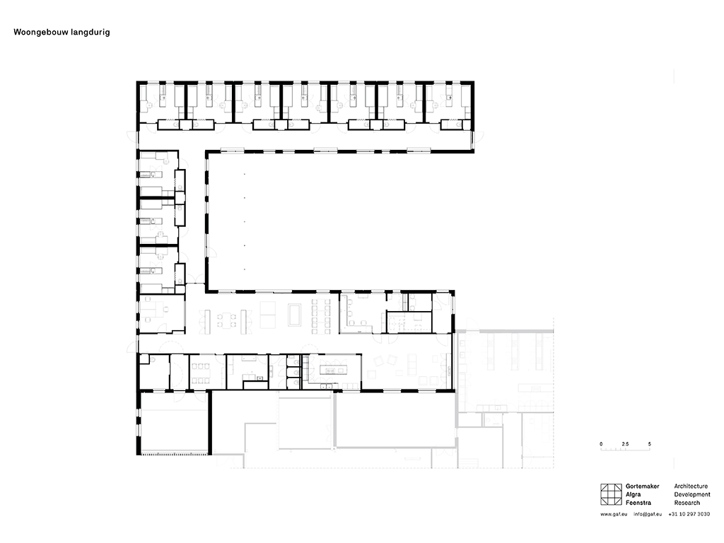
In het nieuwe woongebouw vertaalt deze ontwerpvisie zich in een huiselijk gebouw met veel licht, ruimte en zicht op groen. Er zijn gezellige leefruimtes om samen activiteiten te doen en geborgen plekken om zich terug te trekken. Elke jongere heeft een eigen kamer die als kleine studio is ingericht.
Een campus met een groen hart
De Hutten kenmerkt zich door veel groene buitenruimte, maar de oude gebouwen lagen rond een afgesloten binnenkoer waarbinnen het campusleven grotendeels plaatsvond zonder verbinding met het omliggende groen. De uitdaging: het landgoed beter benutten, zonder toezicht en veiligheid te verliezen.
Het nieuwe masterplan zoekt een balans tussen openheid en geslotenheid. Door de gebouwen ruimte te geven op het terrein, en ze tegelijkertijd te organiseren in een ensemble rond een groot groen plein, bieden we een duidelijk structuur in een open landschap. Hoogteverschillen, beplanting en strategisch geplaatste gebouwen vervagen harde grenzen en creëren privacy. Tuinen bij de leefgroepen bieden beschutting, terwijl open ruimtes uitnodigen tot gezamenlijk gebruik. Het centrale plein vormt het hart van de campus, met sportzones en herkenbare gebouwen rondom: de robuuste sporthal, ateliers met sheddaken en kleinschalige woongebouwen. Zo stimuleert de campus beleving, beweging en sociale interactie.
Blik op de toekomst
Bewegen staat centraal op de campus; sport is onderdeel van het dagelijkse programma. Het sportgebouw met sporthal, fitnessruimte en dojo profiteert van veel daglicht. Het is een compact gebouw met een slimme organisatie die ervoor zorgt dat jongeren niet door lange gangen moeten lopen en begeleiders eenvoudig toezicht kunnen houden op de sporters. Warmtepompen aan de achterzijde voorzien de campus van hernieuwbare energie.
Naast de sporthal ligt het nieuwe onderwijsgebouw met ateliers voor hout- en metaalbewerking, een horecaklas en theorielokalen voor talentontwikkeling. Jongeren volgen tijdens hun verblijf namelijk ook onderwijs.
Beide gebouwen zijn direct bereikbaar vanaf het centrale plein en liggen bewust lager om de kleinschaligheid van de campus te respecteren. De woongebouwen worden afgewerkt met rode baksteen, terwijl de sport- en onderwijsgebouwen houten geveldelen hebben. Zo ontstaat onderscheid binnen het ensemble en wordt duurzaam, natuurlijk materiaal toegevoegd.
Fasering
De campus blijft tijdens de bouwwerkzaamheden in werking. Het project wordt daarom in fases uitgevoerd, waarbij bouwzones veilig worden afgebakend van de leefomgeving van de jongeren. De basis voor een toekomstbestendige campus waarin wonen, leren, werken en ontspannen samenkomen is gelegd. In 2026 wordt hier verder aan gebouwd, en zal deze kwaliteit verder versterkt worden.
| Oplevering | 2025 |
| Opdrachtgever | Opgroeien regie, Agentschap Facilitair Bedrijf |
| Constructeur | Concreet |
| Bouwkunding aannemer | Van Hout nv |
| Fotograaf | Lucas van der Wee |
| Ingenieursbureau | Groep Infrabo |
| Veiligheidscoördinator | ABESCO |