CityPromenade
CityPromenade vormt het sluitstuk van de ontwikkeling van City Oost, onderdeel van de vernieuwing van City, de binnenstad van Nieuwegein. Het gebied ligt tussen het Stadshuis, Stadstheater DE KOM en het water van de Doorslag – een centrale plek waar wonen, voorzieningen en openbare ruimte samenkomen. Het project vormt de stedenbouwkundige schakel tussen het Stadsplein en de Doorslag, waardoor het centrum van Nieuwegein aan het Doorslagkanaal komt te liggen – een recreatieve waterverbinding tussen het Merwedekanaal en de Hollandsche IJssel. Daarmee krijgt de oostelijke zijde van het centrum een nieuw stedelijk silhouet, bestaande uit vier samengestelde torens.
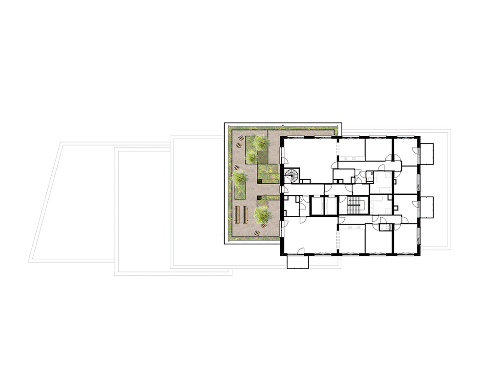
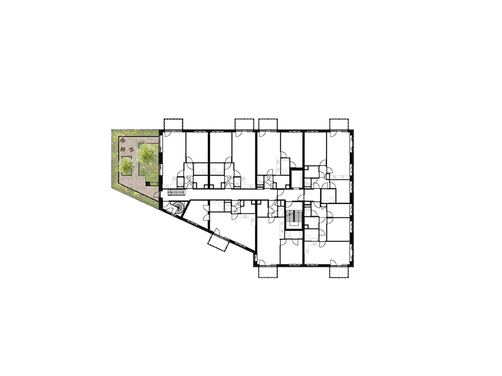
Rijnboutt ontwierp de gebouwen, de publieke buitenruimtes en de collectieve daktuinen. De hoge dichtheid versterkt de stedelijke kwaliteiten van het centrum, zowel programmatisch als ruimtelijk. De opzet van de woongebouwen biedt een grote variatie aan woningtypes, van compacte appartementen van circa 45 m² tot royale woningen van ruim 200 m². Het diverse programma van koopwoningen, sociale huur, middenhuur en vrije sectorhuur maakt CityPromenade tot een inclusieve woonomgeving en levert een belangrijke bijdrage aan het oplossen van het woningtekort in de regio Utrecht. In de plint zorgen horeca, entrees en woningen voor levendigheid en een vanzelfsprekende aansluiting op de openbare ruimte.
‘Groen is een centraal thema in het ontwerp,’ zegt Jurriën Boon, architect bij Rijnboutt. ‘We hebben de gebouwen zowel aan de zijde van de Doorslag als aan de zijde van het Stadsplein ingebed in groen. Op de terrassen liggen collectieve daktuinen, de publiek toegankelijke binnentuin sluit aan op het Stadsplein en de groene dakranden zorgen voor een herkenbaar silhouet. Die binnentuin was bovendien aanleiding om ook de tuin op het Stadsplein te vergroten. Deze ingrepen creëren niet alleen een aangenaam woonmilieu, maar verminderen ook hittestress en dragen bij aan klimaatadaptatie en de biodiversiteit in het stadshart van Nieuwegein.’
'Hoewel CityPromenade een hoge dichtheid heeft, is veel aandacht besteed aan de schaalbeleving,' zegt Frederik Vermeesch, architect-stedenbouwkundige en directeur van Rijnboutt. 'De wand langs de Doorslag is bewust doorbroken en architectonisch opengewerkt. Door de volumes te verfijnen en terug te laten treden ontstaat een ranker silhouet dat lichter oogt en beter aansluit op het Stadsplein. Tussen de gebouwen ontstaat zo een soort vallei die het Stadsplein verbindt met de zone langs het water. Op die manier worden stedelijke dichtheid, menselijke maat en de relatie met de bebouwing aan de Doorslag met elkaar verbonden.'
CityPromenade is tot stand gekomen in opdracht van NEOO en Koopmans Bouwgroep. Aan het project werkten onder meer DGMR, Goudstikker De Vries, Verwey, Veldweg, MAT25 en Peutz mee. De oplevering in 2025 markeert de afronding van een ontwikkeltraject dat begon met het winnen van de tender in 2016, gevolgd door een start bouw in oktober 2022.
| Oplevering | 2025 |
| Opdrachtgever | NEOO en Koopmans Bouwgroep |
| Fotograaf | Kees Hummel |