Cruquius 1.6
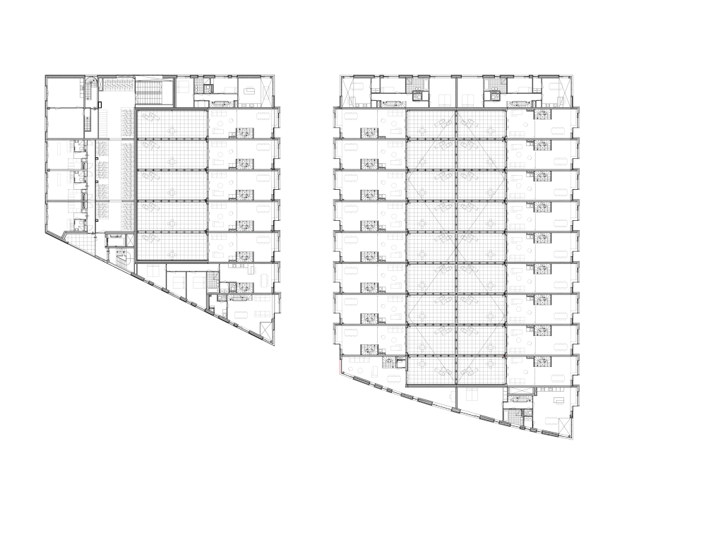
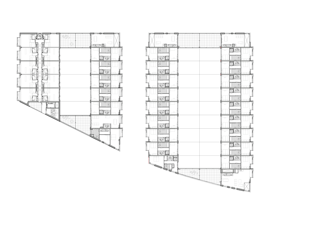
Cruquius 1.6 is een project in het hart van het Cruquiuseiland in het Oostelijk Havengebied in Amsterdam, en een van de laatste projecten van deze grootstedelijke transformatie. Het project zelf bestaat uit een samenstelling van grote stadswoningen en kleine studio’s, aangevuld met een buurtsupermarkt, een gebouwde parkeerstalling en een wko-installatie voor een groter deel van de buurt.
Binnen de gegeven stedenbouwkundige kaders van Cruquius vervult het plan een strategische rol, zowel vanwege haar positie in het stedenbouwkundig plan, als waar het toevoegingen aan het woonprogramma van het hele eiland betreft.
Zo is kavel 1.6 een adres geworden voor zowel starters als voor gezinnen, en kent het project zowel compacte studio’s als grote woonwerkwoningen.
En in deze aanzienlijke dichtheid is er niettemin openbare ruimte toegevoegd, en zijn er ruime dakterrassen voorhanden.
| Oplevering | 2024 |
| Projectteam | Peter Defesche, Davey van Giesen |
| Interieur | Voor Tiny Lofts: D2VH, overige delen interieur: DVDP |
| Opdrachtgever | Amvest Vastgoedontwikkeling en Investment Management |
| Constructeur | Pieters Bouwtechniek |
| Adviseur installaties | Bureau Nieman |
| Bouwkunding aannemer | NewBouw, Uitgeest |
| Fotograaf | Roos Aldershoff |