De Amersfoortse Berg
Openbaar Lyceum De Amersfoortse Berg in Amersfoort-Zuid is misschien wel de mooist gelegen school van Amersfoort. Aan de goed bereikbare Hugo de Grootlaan gaan circa 1.150 havo- en vwo- leerlingen naar school, midden in een bosrijke omgeving. De school heeft de ambitie de meest duurzame school van Amersfoort te zijn waarbij ‘groen, gezond en duurzaam’ is verweven in zowel het onderwijsprogramma als het schoolterrein.
Het hoofdgebouw uit 1960 en de ‘kunstvilla’ waren aan vervanging toe en er was behoefte aan twee nieuwe sportzalen. Daarom werd SVP gevraagd een ontwerp te maken voor de nieuwe gebouwen en de buitenruimte. Overigens zijn niet alle gebouwen vervangen; het onderwijsgebouw uit 2013 en de grote sportzaal uit 2010 bleven staan. Bij dit project werkten we samen met Adviesbureau Haver Droeze en DWA.
Onderwijs in een groene omgeving
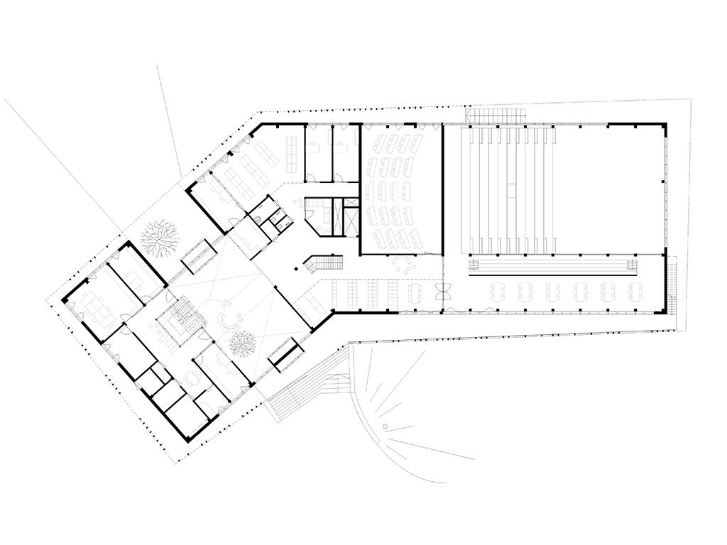
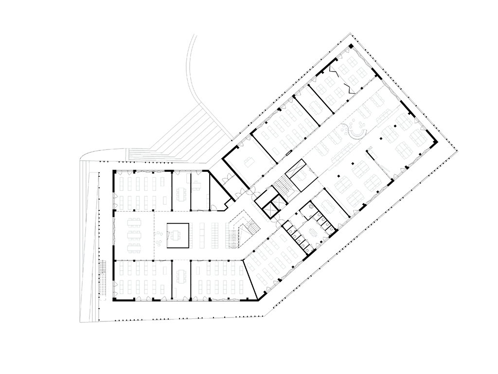
De bosrijke omgeving is een belangrijk onderdeel van de identiteit van De Amersfoortse Berg en inspireerde ons team bij het ontwerp, dat erop is gericht de groene omgeving zoveel mogelijk te ervaren; zowel binnen als buiten. We hebben de positionering van de nieuwe gebouwen zorgvuldig gekozen zodat er bijna geen bomen gekapt werden. Bovendien nodigen onze oplossingen uit tot openluchtonderwijs. Ook de campusopzet draagt daar aan bij doordat leerlingen extra veel buiten komen, onder andere bij de wisseling van lessen. We vertellen graag wat meer over de campus en de verschillende gebouwen.
In tegenstelling tot de vorige situatie, zorgt ons ontwerp van het Entreegebouw voor de herkenbaarheid van een open, uitnodigend en transparant schoolgebouw aan de Hugo de Grootlaan. Mede daarom zijn de entree en de theateraula duidelijk herkenbaar in de gevel en geven is er een doorkijkje naar het groene binnenterrein. Een grote boom in de entreehal draagt bij aan de verbinding tussen het interieur en het landschap en samen met de theateraula en de bovengelegen kunstlokalen wordt zo het gezicht van de school bepaald.
Het Alfa-gebouw, voor onderwijs van de alfa-vakken, is het bestaande gebouw uit 2013. Hier komen ook de mediatheek en de personeelskamer (met terras). Er zijn op dit moment nog geen verder uitgewerkte plannen.
In het Bèta/Gamma-gebouw komen, zoals de naam al doet vermoeden, de onderwijsfuncties van de secties bèta en gamma. Dit nieuwe onderwijsgebouw krijgt grote puien waarvan sommigen helemaal open kunnen zodat onderwijs in de open lucht op de grote, beschutte omloop mogelijk is. Door de omloop wordt ook het directe zonlicht geweerd en worden de onderwijsruimten niet te warm. Dat het gebouw zo een geheel eigen karakter krijgt is win-win-win!
Het huidige Sportgebouw wordt aangevuld met twee nieuwe gymzalen en ondersteunende functies. De extra entree heeft een directe verbinding met het sportveld buiten voor een extra sportieve beleving. En daar waar de gymzalen grenzen aan het binnengebied zijn grote ramen zodat je van binnenuit het omringende landschap kunt zien en vanaf buiten de sportende leerlingen zichtbaar zijn.
Campus met een geborgen binnenterrein
Tussen de verschillende gebouwen ligt een grote open en lichte middenruimte, als centrum van de campus, die is omringd door zowel de bosrand als gebouwen. Op deze besloten en veilige plek is een mooie tuin met fijne zitplekken waar leerlingen graag zijn om te leren, studeren, sporten en kletsen.
Omdat bewegen belangrijk is, hebben we de besloten pauzeplek zichtbaar verbonden met het sportterrein. Zo wordt sport nog meer een vast onderdeel van de school uit en worden leerlingen extra gestimuleerd om te bewegen.
Een frisse, toekomstbestendige blik op duurzaamheid
Een duurzaam schoolgebouw is voor SVP een gezond gebouw met een lang leven dat zo min mogelijk energie verbruikt. Het gebouw is gasloos, maakt gebruik van lucht-warmtepompen en zonnepanelen (PV). Dankzij de hoogteverschillen in het landschap zijn deze maatregelen zichtbaar wat bijdraagt aan bewustwording. Dit kan worden versterkt met interactieve borden die de opbrengst inzichtelijk maken.
Frisse lucht wordt gewaarborgd door een mechanisch ventilatiesysteem en de ramen die open kunnen. De omloop van het gebouw heeft een belangrijke rol in de (passieve!) klimaatbeheersing van en draagt bij aan energiebesparing. In de zomer zorgt de overstek dat er geen direct zonlicht op de gevel valt waardoor opwarming van het gebouw geminimaliseerd wordt.
Om het gebouw toekomstbesteding te maken, is de draagstructuur van de gebouwen opgebouwd uit een skelet van kolommen en vloeren. Met lichte scheidingswanden zijn vervolgens de ruimtes gevormd waardoor de indeling van de school eenvoudig kan worden veranderd als er een andere behoefte ontstaat.
Jop Voorn architect bij SVO Architectuur en Stedenbouw: “Het omringende bos was vanzelfsprekend het startpunt voor de gezonde leeromgeving. Zicht op groen draagt bij aan betere leerprestaties. De gebouwen dragen daar hun steentje aan bij door zelfs onderwijs ìn het groen mogelijk te maken dankzij grote vouwpuien en een brede omloop rondom de gebouwen. Openluchtonderwijs anno nu. En ook in de grote open middenruimte, waar de gebouwen omheen staan, kunnen leerlingen leren, studeren, sporten en kletsen.”
| Oplevering | 2025 |
| Opdrachtgever | Stichting Onderwijsgroep Amersfoort |
| Constructeur | PRO6 managers, Adviesbureau DWA |
| Bouwkunding aannemer | Kormelink Bouw |
| Fotograaf | Aiste Rakauskaite |