Het Streek Lyceum
Atelier van Berlo en Ector Hoogstad Architecten ontwierpen Het Streek Lyceum in Ede als sociaal en ruimtelijk hart voor school en gemeenschap. De middelbare school biedt 1500 leerlingen van vmbo-tl, havo, vwo en gymnasium een toekomstbestendige omgeving die ontmoeting, gezondheid en verbondenheid stimuleert binnen een compact en circulair ontwerp.
Inpassing in de omgeving
Het gebouw is zorgvuldig gepositioneerd tussen de omliggende woonwijk en de Kenniscampus. Met zijn twee- en vierlaagse volumes verbindt de school twee werelden met elkaar. De gevel, uitgevoerd in baksteen met terugliggende houten vlakken, geeft het ontwerp een gelaagd reliëf en ritmische uitstraling die aansluit op de schaal van de omgeving. Blikvanger is het Technasium: een transparant volume van glas en aluminium dat uit het gebouw steekt en rust op een van de kenmerkende heuvels op het terrein. Deze heuvels verwijzen naar de Veluwe en verankeren het gebouw vanzelfsprekend in zijn context.
De overstek van het Technasium en de colonnade vormen samen een geborgen toegang tot wat de school zelf ‘de wereld van Het Streek’ noemt. In de entreehal worden bezoekers direct verwelkomd door een ronde balie, met zicht op de aula en een centrale trap die toegang biedt tot alle verdiepingen. De wens om vanuit ontmoeting te ontwerpen wordt zo tastbaar gemaakt.
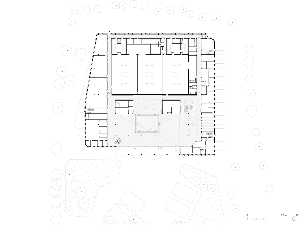
Multifunctionele aula
Centraal in het ontwerp ontvouwt zich de lichte aula: het kloppend hart van het schoolleven. Met hoogteverschillen, zithoekjes, en zichtlijnen biedt de royale ruimte veel intieme plekken om te ontmoeten. Blikvanger is de multifunctionele houten wand die zich aan alle kanten openvouwt en uitnodigt tot gebruik. Zo ontstaat een podium dat bewust gelijkvloers is gehouden, met een zitkuil die het geheel logischerwijs tot theater maakt - een geliefde plek tijdens de pauzes. Via de achterliggende loopbrug met balkon kunnen leerlingen zich zelfs laten inspireren voor een klassieke Romeo & Juliet-scène. Naast het vormen van het toneel huisvest het volume uiteenlopende functies zoals een uitgifteluik voor de kantine, de conciërgeruimte en diverse werkplekken voor leerlingen en docenten. Door de eikenhouten bekleding krijgt de aula een warm en levendig karakter.
Ruimte voor ontmoeting
De aula leeft tijdens én buiten schooltijd: een veelzijdige plek waar de wijk samenkomt voor kerkdiensten, theatervoorstellingen en sportevenementen. De grote glazen pui legt een directe visuele verbinding met het plein en de buurt en nodigt ouders, omwonenden en bezoekers uit om deel te nemen aan de activiteiten. Zo ontstaat een levendig en gedeeld domein voor leerlingen én buurtbewoners.
Die dynamiek zet zich voort in de rest van het gebouw: rondom de aula ligt een ringstructuur met leerlingwerkplekken, waardoor er altijd levendigheid is. Ook op de bovenste twee verdiepingen liggen de lokalen, werkplekken en leerlingpleinen rondom een atrium, waardoor er extra daglicht binnenkomt. Elk vak cluster heeft een eigen zone in het gebouw, zo zijn de kunstlokalen strategisch aan de straatzijde geplaatst om dit onderwijs zichtbaar te maken voor de buurt.
Circulair ontwerp
Naast ruimtelijke kwaliteit, speelde ook duurzaamheid een vanzelfsprekende rol. De gymzalen zijn in het midden van het gebouw gepositioneerd, waardoor een compacte hoofdvorm mogelijk is. Het compacte bouwvolume, de diepe penanten in de gevel, zonnepanelen en de gasloze installatie zorgen voor een energiezuinig ontwerp. Als gezonde ‘Frisse School’, met veel aandacht voor daglicht, CO2-gestuurde ventilatie en uitzicht op groen, draagt het bij aan de gezondheid en welzijn van leerlingen en medewerkers. Daarnaast maakt het innovatieve droogstapelsysteem de bakstenen gevel volledig herbruikbaar in de toekomst. Het Streek is het eerste gebouw met vier verdiepingen dat in Dry-stack is gerealiseerd, een proces dat de nodige uitdagingen en kennisontwikkeling opleverde. Het aangaan van deze uitdagingen onderstreept de circulaire ambitie van het team. Door de bakstenen letterlijk aan de latei vast te schroeven en de schroeven zichtbaar te laten, wordt hergebruik een onderdeel van de beleving van het gebouw.
Diezelfde aandacht voor innovatie was al in het ontwerpproces zichtbaar. In de tenderfase is slim nagedacht over de bouwvolgorde. Door een klein deel van de bestaande school vroegtijdig te ontmantelen, ontstond ruimte om de nieuwe school in één keer aan de noordzijde te realiseren. Dit bespaarde de kosten van tijdelijke huisvesting, verkortte de verhuistijd en beperkte de impact voor leerlingen en docenten. Materialen uit het gesloopte oude schoolgebouw zijn hergebruikt bij de inrichting van de buitenruimte en vormen onder andere een groot insectenhotel.
Een sociaal en ruimtelijk hart
Het ontwerp is tot stand gekomen in nauwe samenwerking met zowel leerlingen als medewerkers. Zo werd er in lesvorm onderzocht wat de indeling van het toekomstige Technasium moest worden, was er een workshop over kleuren en kozen buurtbewoners de boom grenzend aan hun tuin. Deze betrokkenheid resulteerde in een gebouw dat herkenbaar is en echt past bij de mensen die het dagelijks gebruiken. Met de multifunctionele aula is Het Streek Lyceum uitgegroeid tot een plek die mensen samenbrengt: een open leeromgeving als hart van zowel de school als de wijk.
| Oplevering | 2025 |
| Opdrachtgever | Het Streek Lyceum |
| Fotograaf | Marcel van der Burg |