IKEC de Zevensprong
Het nieuwe Integraal Kind- en Expertise Centrum (IKEC) de Zevensprong is in 2025 in gebruik genomen. KRFT Architecture studio heeft het gebouw ontworpen dat voortaan vijf locaties verenigd voor speciaal (basis-)onderwijs: één duurzame leeromgeving voor onderwijs, zorg, opvang en sport. De Zevensprong is een plek waar kinderen zich thuis voelen, zich vrij kunnen ontwikkelen en waar professionals samenwerken vanuit één gedeelde visie: het kind staat centraal.
Architectuur op kindermaat
Het ontwerp volgde op een ontwerpend onderzoek onder begeleiding van Stichting Mevrouw Meijer, waarin meerdere architecten werden gevraagd om een visie te ontwikkelen op deze complexe opgave. KRFT ontwierp de Zevensprong als een ensemble van vijf verspringende paviljoens om de kleinschaligheid van een dorpsschool te behouden en de verbinding met buiten te versterken. “Het is méér dan een schoolgebouw,” zegt Eline Peen, directeur van de Zevensprong. “Het is een plek waar kinderen zich veilig voelen, zich in hun eigen tempo kunnen ontwikkelen en waar onderwijs, zorg en opvang letterlijk samenkomen onder één dak.”
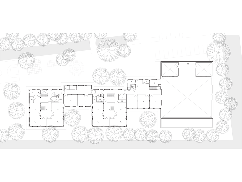
Paviljoenstructuur brengt rust en overzicht
Het grote gebouw is in het ontwerp opgeknipt in kleine schooltjes met een eigen voordeur en een schaal die aansluit op het kind. De afwisseling van lichtgroen stucwerk en donkerbruin bamboe zorgt voor een vriendelijk, speels en tactiel gevelbeeld. Binnen brengt de plattegrond overzicht en rust: de lokalen zijn per paviljoen georganiseerd rondom open, groene leerpleinen.
Door de verspringende paviljoens vangen de groepsruimtes veel licht en is er overal zicht op de groene buitenruimtes. Grote ramen en zichtlijnen versterken de onderlinge verbinding tussen de groepen en de tussenliggende (natuur-) speelruimtes. Centraal ligt het Praathuis: een open ontmoetingsplek waar ouders, specialisten en leerkrachten elkaar informeel kunnen ontmoeten. Hier komen alle betrokkenen rondom het kind samen.
In het ontwerp is rekening gehouden met kinderen die gevoelig zijn voor prikkels. Zo is er gekozen voor zachte kleuren, natuurlijke materialen en een warme akoestiek door de toepassing van houten plafonds en wanden. “We wilden een omgeving creëren waarin rust, duidelijkheid en geborgenheid centraal staan,” licht Oscar Vos toe, architect en partner bij KRFT. “Een gebouw dat kinderen houvast biedt en professionals inspireert om samen te werken vanuit één visie.”
Radicale materiaalkeuzes voor een Paris Proof-school
De Zevensprong is met bijna 7.000 m2 één van de grootste houten basisscholen van Nederland en voldoet aan de Paris Proof drempelwaardes. De constructie bestaat uit een open houten skeletstructuur: licht, demontabel en adaptief. De verschillende houten vloersystemen en de dampopen, bio-based gevels met natuurlijke isolatie (flexibele houtwol) dragen bij aan een gezond binnenklimaat en een beperkte klimaatbelasting. De gevel in geperst bamboe — in Nederland nog nauwelijks op deze schaal toegepast — verenigt duurzaamheid, brandveiligheid en een lange levensduur. Door te kiezen voor prefabricage, droge montage en het hergebruik van materialen is tevens de uitstoot tijdens de bouw tot een minimum beperkt.
Vos: “Een school Paris Proof maken is geen eenvoudige opgave; je moet radicaal zijn in elke materiaalkeuze. Dankzij natuurlijke materialen in constructie, gevels en afwerkingen wordt er 2 miljoen kg CO₂ (285 kg CO₂ per m²) voor lange termijn vastgelegd in dit gebouw. Tegelijkertijd worden hiermee de materiaalgebonden emissies beperkt tot 315 kg CO₂-eq per m². Hiermee sluiten we aan op de Parijs-doelstellingen. De grootste stap was de open constructie in massief hout. Maar daarmee ben je er niet: een bio-based gevel, houten kozijnen, houtvezel-isolatie en tot en met de laatste interieurafwerkingen, is elke beslissing getoetst aan haar klimaatimpact.”
| Oplevering | 2025 |
| Projectteam | Oscar Vos, Thomas Dieben, Alexander Beeloo, John Rous, Ashleigh Sullivan, Luke van der Vorst, Sohila Elshenawi, Thomas Fell Rubio, Javier Pose Bazarra |
| Interieur | KRFT |
| Constructeur | Adviesbureau Lüning |
| Bouwkunding aannemer | De Nijs bouw en ontwikkeling |
| Fotograaf | Stijn Bollaert |
| Projectleider | Alexander Beeloo |
| Landschapsarchitect | Jan de Vries, Grijs Kleurt Groen |
| Projectmanagement | bbn adviseurs |
| Installateur | nica Building Projects |
| Installatieadvies | De Blaay – Van den Bogaard |
| Bouwfysica | DGMR |
| Constructieve vloeren | Lignatur – constructieve houten vloeren |
| Ruwbouw (hoofddraagconstructie) | De Groot Vroomshoop |
| Gevel | RedBuilding bamboe gevelbekleding |
| Houtskeletbouw en houtbewerking | Frank van Roij |
| Gevelbekleding | Moso Bamboo X-treme Gevelbekleding |