{1}
##LOC[OK]##
{1}
##LOC[OK]##
##LOC[Cancel]##
{1}
##LOC[OK]##
##LOC[Cancel]##
Om deze website goed te laten functioneren, gebruiken wij cookies. Bekijk ons
cookiebeleid
. Als u onze site gebruikt, gaan wij ervan uit dat u akkoord bent.
Deze melding niet meer tonen
contact
|
nieuwsbrief
|
adverteren
|
inloggen
Volg ons op
Home
Bouwdetails
Bouwkosten
5D-BIM
Partners
Webwinkel
<
Projecten
Architectuurnieuws
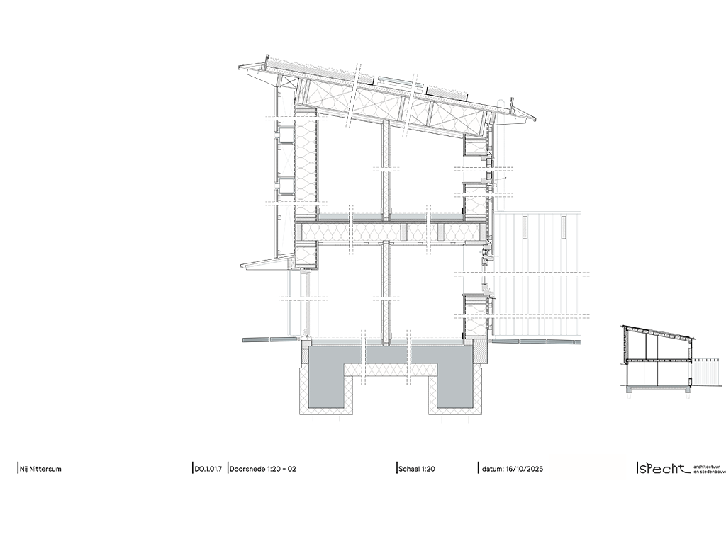
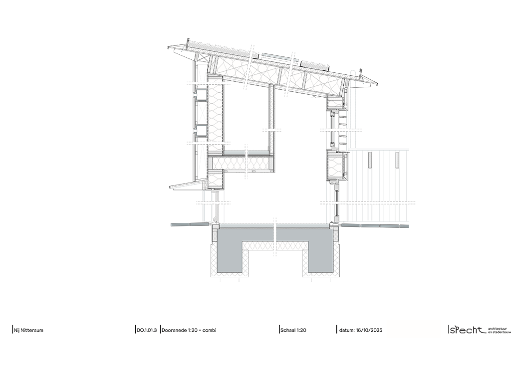
Over dit project
Lees verder
Gerelateerde leveranciers
Onze partners
Sluit deze advertentie