Prisma
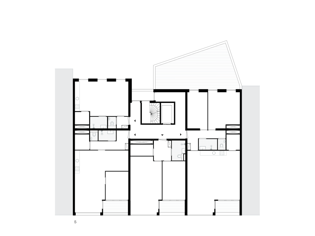
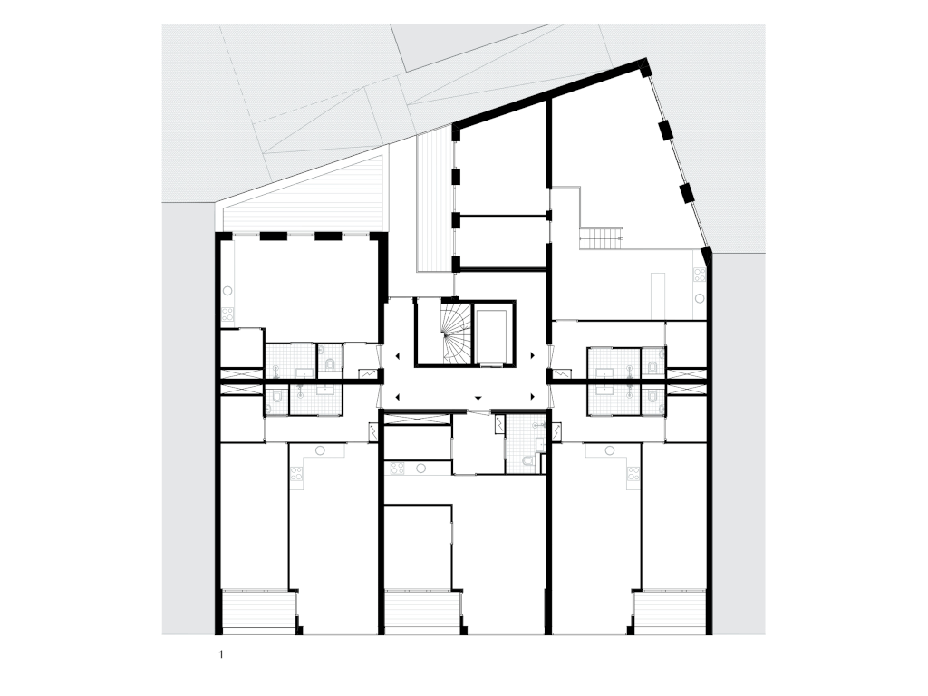
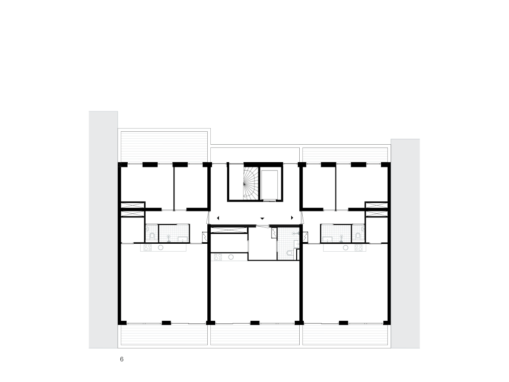
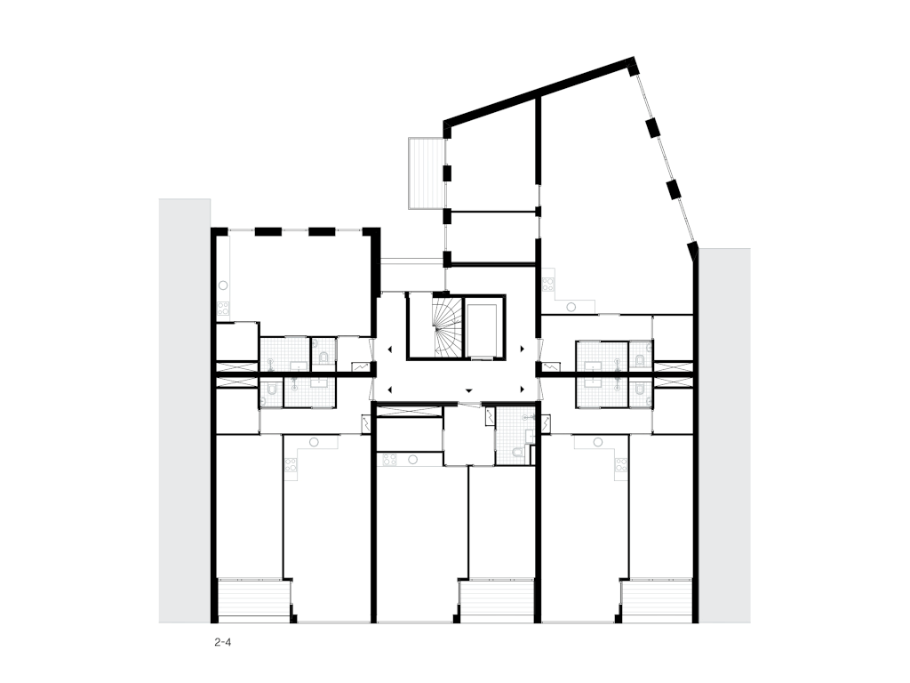
Woongebouw Prisma is ontworpen met aandacht voor inpassing op de locatie. Het gebouw richt zich naar drie zijden met ieder een eigen kwaliteit: de grachtzijde, een pleintje en een groene collectieve binnentuin.
De pleingevel is kleinschalig met oog voor de naastliggende panden, de tuingevel is ingetogen en de stedelijke grachtgevel van het gebouw valt op door de toepassing van baksteen vloerranden en ‘koperen’ erkers. Deze unieke positionering creëert een diversiteit aan uitzichten en ervaringen voor bewoners. Daarnaast huisvest het gebouw een scala aan woningtypen waardoor het een inclusieve en gevarieerde woonomgeving vormt.
| Oplevering | 2025 |
| Opdrachtgever | Prisma Delft b.v. / van Valentijn b.v. |
| Constructeur | Pieters bouwtechniek |
| Bouwkunding aannemer | SBB ontwikkelen en bouwen |
| Fotograaf | Sebastian van Damme |