Suite 9
Suite 9 brengt nieuw leven op de TU Delft Campus met 137 zelfstandige studentenwoningen.
Midden in het gebouw ligt het ‘Hart’: een enorme semi-buitenruimte die het opvallende profiel van Suite 9 vormt en de plek is waar het studentenleven spontaan kan ontstaan.
Langs de Balthasar van der Polweg breekt het gebouw met het strakke stedelijke grid van Carel Weeber en presenteert het zich als een verrassend nieuw object in de omgeving — een gebouw dat zowel bewoners als de bredere campusgemeenschap aantrekt. Door slim gebruik van prefab, zorgvuldig ontworpen sociale ruimtes en duurzame, ecologische ingrepen, laat Suite 9 zien hoe studentenhuisvesting zowel efficiënt als beeldbepalend kan zijn.
We hebben het Hart ontworpen als een plek die zowel flexibel als uitnodigend is: geschikt voor alles van studeren in de buitenlucht tot gezamenlijke evenementen. De aftrappende platforms dienen als zitplekken, terrassen of informele podia, die spontaan gebruik stimuleren. Direct aan het Hart zijn de collectieve functies binnen ingericht om het sociale leven van het gebouw te versterken: een gemeenschappelijke woonkamer met keuken en lange eettafel, intieme studiehoeken, een tv-lounge en wasfaciliteiten. Een verdiepinghoge glazen wand verbindt de woonkamer met de universiteitscampus.
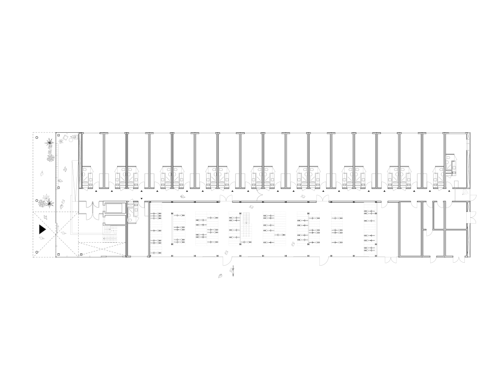
De woonlagen en de fietsenstalling op de begane grond zijn elk op hun eigen manier rond het Hart georganiseerd en ermee verbonden. Dit zorgt voor een andere ervaring op elke verdieping, waarbij het Hart fungeert als de centrale schakel in de circulatie van Suite 9.
Bij het ontwerp van Suite 9 hebben we volledig ingezet op modulaire prefab, in nauwe samenwerking met Daiwa House Modular. Dankzij de prefabunits stond het gebouw in slechts 26 weken, zonder concessies te doen aan kwaliteit of precisie. Prefab betekende echter meer dan alleen snelheid: het vormde de kern van onze ontwerpfilosofie, waarin herhaling en variatie op een speelse manier door het hele gebouw zichtbaar zijn.
Ons ontwerp creëert een sterk contrast tussen de beleving van buiten en binnen. De buitengevel is robuust - bekleed met grafietkleurige Eternit TE 80-panelen, ingevuld met matte zwarte kozijnen. Geperforeerde panelen doorbreken het oppervlak in afwisselende patronen, die de functies erachter onthullen en ’s avonds het gebouw transformeren tot een verwonderend lichtspel.
Binnen zorgen Sucupira Amarela-houten vloeren, wanden en plafonds voor continuïteit en warmte in de collectieve ruimtes. Geïntegreerde meubels en planten in het Hart creëren een functionele, gezonde plek, waar bewoners zowel vrij kunnen doorstromen als even kunnen verblijven voor een rustig moment.
Alle collectieve voorzieningen zijn binnen het gebouw ondergebracht, waardoor het dak volledig kan worden benut als sedumlandschap met zonnepanelen.
| Oplevering | 2025 |
| Projectteam | Albert Herder, Vincent van der Klei, Arie van der Neut, Metin van Zijl, Ania Bozek, Eva Souren, Anouk van Deuzen |
| Opdrachtgever | DUWO |
| Fotograaf | Sebastian van Damme |