Tiny Houses
Nieuwbouw in een gotisch kloostercomplex
In 2013 won Atelier Kempe Thill, samen met bbz landschaftsarchitekten uit Bern, de prijsvraag voor de langetermijntransformatie van het klooster Kappel am Albis in Zwitserland. Dit ensemble van verschillende gebouwen bestaat uit witgekalkte Zwitserse huizen, waarvan een deel ook vakwerkbouw. Hiertegenover staat een rij van indrukwekkende houten schuren met grote dakoverstekken. Het totale project, dat inmiddels al meer dan tien jaar loopt, omvat een groot aantal deelprojecten. Eén daarvan is een klein nieuw woongebouw, waarin Atelier Kempe Thill zijn traditie voortzet om op een onverwachte manier te experimenteren met de typisch Nederlandse rijtjes-woningtypologie.
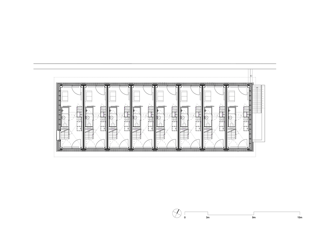
Het doel van de opdrachtgever is om kleine appartementen te realiseren voor tijdelijke verhuur ten behoeve van het hotel. Het oude pakhuis dat zich op de projectlocatie bevindt, wordt hiervoor gesloopt, omdat het niet geschikt is voor transformatie tot appartementen. De architectonische uitdaging voor het nieuwe gebouw ligt voornamelijk in de beperkte ruimte op de locatie en het gewenste aantal van acht appartementen. Uitgebreid onderzoek naar bouwtypologieën op basis van meerlaagse appartementen leverde geen bevredigende oplossingen op.
Daarnaast schrijven de lokale bouwvoorschriften van het dorp voor dat daken een puntvorm moeten hebben. Dit roept de architectonische vraag op hoe de daardoor ontstane dakruimte in een woongebouw optimaal benut kan worden om een kwalitatieve binnenruimte te creëren.
Miniatuur rijwoning
Om deze redenen is gekozen om de typologie van de rijwoning te onderzoeken. Het resultaat is een reeks uiterst smalle rijwoningen met een maat tussen de assen van slechts 3,1 meter. Deze woningen hebben op de begane grond een woonruimte met keuken en op de verdieping een slaapgedeelte. Beide verdiepingen worden met elkaar verbonden door een dubbelhoge ruimte die uitmondt in de punt van het dak. Het kleine appartement, met een oppervlakte van slechts 33 m², biedt daardoor een ruimtelijk complexe en rijke ervaring. De schaarste aan bruikbare ruimte vereist een organisatie waarbij alle functies als een nauwkeurig mechanisme in elkaar grijpen en elke hoek optimaal wordt benut. Zo bevindt de badkamer zich precies onder de trap, in een wandkast geïntegreerd. Al het meubilair is ontworpen en ingebouwd, zodat - afgezien van een bed, twee kleine tafels en enkele stoelen - geen los meubilair nodig is. In die zin volgen de woningen het concept van “tiny houses”, die met hun hoge mate van ruimteoptimalisatie eerder doen denken aan bewoonbaar meubilair dan aan een traditioneel huis.
Tiny houses hebben een lange traditie die teruggaat tot de 19e eeuw, maar kregen hun huidige vorm in de Verenigde Staten in de jaren negentig en verspreidden zich vanaf de jaren 2000 naar Europa. Enerzijds zijn ze een reactie op groeiende kritiek op consumentisme en de wens om met een minimale ecologische voetafdruk te leven. Anderzijds vormen ze een typologische reactie op stijgende woningprijzen, demografische veranderingen, de toename van eenpersoonshuishoudens en de daaruit voortvloeiende noodzaak om woonruimte te minimaliseren. De tiny houses in Kappel zijn precies vanuit deze combinatie van redenen gerealiseerd.
Monoliet in hout
De gekozen materialen versterken zowel de ruimtelijke kwaliteit als het uiterlijk van de woningen. De huizen zijn ontworpen in houtskeletbouw en profiteren van de hoogwaardige en precieze Zwitserse houtbouwcultuur. De constructies bestaan uit CLT-panelen (cross laminated timber), die ook doorlopen in het dakvlak, het verlaagde plafond en de balustrade van de bovenverdieping. Hiermee ontstaat de basis voor een volledig houten interieur. De CLT-panelen worden gecombineerd met diverse ingebouwde meubelstukken, zoals wandkasten en planken, die uit hetzelfde hout zijn vervaardigd en zo het monolithische karakter consequent voortzetten. Afgezien van de kelder is alleen de begane grond uitgevoerd in beton, afgewerkt met terrazzo in een kleur die aansluit bij het hout van de wanden.
De hoofdgevel, gericht op het klooster, bestaat uit grote vaste glaspartijen en dubbele deuren. Het gebied voor de woningen, met een compacte waterdoorlatende verharding, fungeert als terras. Aan de achterzijde, gericht op de nieuw gebouwde kloostermuur, bevinden zich de entreedeuren in combinatie met vaste beglazing. Het slaapgedeelte op de verdieping is voorzien van een omkeerbaar raam. De gesloten delen van de gevel zijn bekleed met houten latten om het monolithische karakter van het hout te benadrukken, waardoor het nieuwe gebouw aansluit bij de schuurachtige structuren van het kloostercomplex.
De dakrand en de raamomlijstingen zijn afgewerkt met koper. Het dak is bedekt met rode dakpannen.
Geobjectiveerd massaproduct
De rijwoning is een van de meest voorkomende woningtypologieën in West-Europa. Voor Atelier Kempe Thill vormt zij al vanaf het begin een belangrijk uitgangspunt in het architectonisch ontwerp. In zijn eenvoud is de rijwoning een woningtype dat bijna diagrammatisch typologisch kan worden geëxploiteerd en geobjectiveerd: als een geoptimaliseerd massaproduct en daarmee een uitdrukking van de moderne tijd. Atelier Kempe Thill heeft zich in verschillende ontwerpen met dit thema beziggehouden, zowel in Nederland als in een bredere Europese context. De tiny houses in Kappel, ontworpen als rijwoningen voor maximaal één tot twee personen – als “monospaces”, waarin huis en meubel samenvallen – vormen in hun minimalistische vorm een radicaal, bijna extreem bouwblok binnen dit onderzoek.
| Oplevering | 2024 |
| Projectteam | Atelier Kempe Thill, Architekten und Stadtplaner GmbH, Zürich, CH André Kempe, Oliver Thill, Saskia Hermanek with: Marisa Brunner, Bruno Godeiro, Kento Tanabe, Jurriaan Blom, Sebastian Humpert |
| Interieur | Neukom engineering, Adliswil (HLS) Rosario Spano, Fatmir Emini |
| Opdrachtgever | Verein Kloster Kappel |
| Constructeur | Die Realisatorin, Zürich; Iris Dätwyler, Jeannette Raupach, Daniel Keller |
| Fotograaf | Architektur-Fotografie Ulrich Schwarz |
| Landschapsarchitect | bbz landschaftsarchitekten, Bern Tino Buchs, Jacqueline Meier, Clara Gross |