Cornelis
FARO en Van Bergen Architectura tekenden een levendig woongebouw voor alle generaties waarin bewegen, spelen en ontmoeten vanzelfsprekend deel zijn van het dagelijks leven. Ontworpen in opdracht van BuildingforLife, Prosper Vitae en Heutink, combineert Cornelis o.a. 85 appartementen, een kinderdagverblijf met BSO en horeca. Het project verbindt deze functies voor sociale duurzaamheid, gezondheid en een nieuw perspectief op samen leven in de stad.
Een sociaal gebouw voor alle gezinsvormen
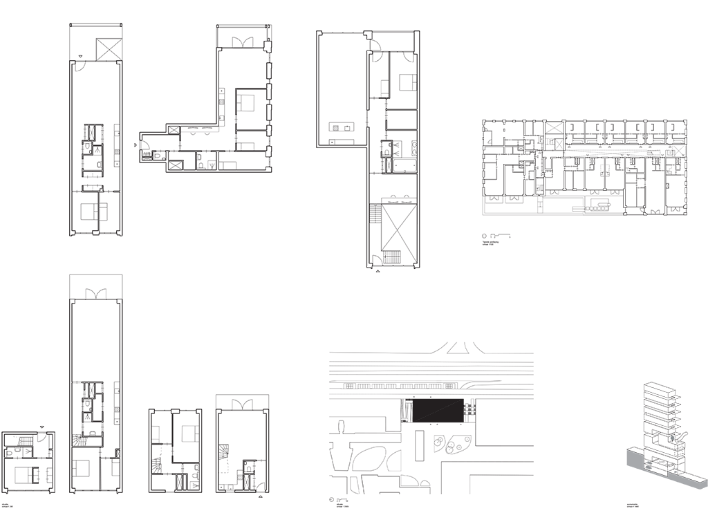
Cornelis biedt ruimte aan 85 koop- en huurwoningen van 60 tot 170 m², elk met een op het zuiden georiënteerde buitenruimte, in een grote variatie aan plattegronden en woontypologieën – van compacte stadsappartementen tot royale gezinswoningen. Daarmee is het gebouw geschikt voor gezinnen in alle vormen: jong en oud, samengesteld, eenouder, starters en doorstromers.
We ontwierpen een gebouw waarin de beleving van het kind centraal staat en bewoners niet naast elkaar, maar mét elkaar wonen. Binnen en buiten vloeien naadloos in elkaar over via royale hallen, lichte corridors, open trappen en collectieve ruimtes. Overal nodigt Cornelis uit tot ontmoeting – niet door regels of voorzieningen, maar door vanzelfsprekende ruimtelijke kansen.
De centrale entreehal is het centrum van deze ‘verticale stad’: met haar warme zuidelijke lichtinval is het de eerste ontmoetingsruimte. Dit is ook het begin van de avontuurlijke route door en over het gebouw. De traptuin vormt de groene ader, waar kinderen spelen en bewoners elkaar op natuurlijke wijze tegenkomen. Langs deze route brengen drie glaskunstwerken van Marjet Wessels Boer het daglicht op een poëtische manier het gebouw in. Zo ontstaat een woonomgeving waarin jong en oud samen kunnen groeien en elkaar blijven ontmoeten.
Verbonden met De Bewegende Stad
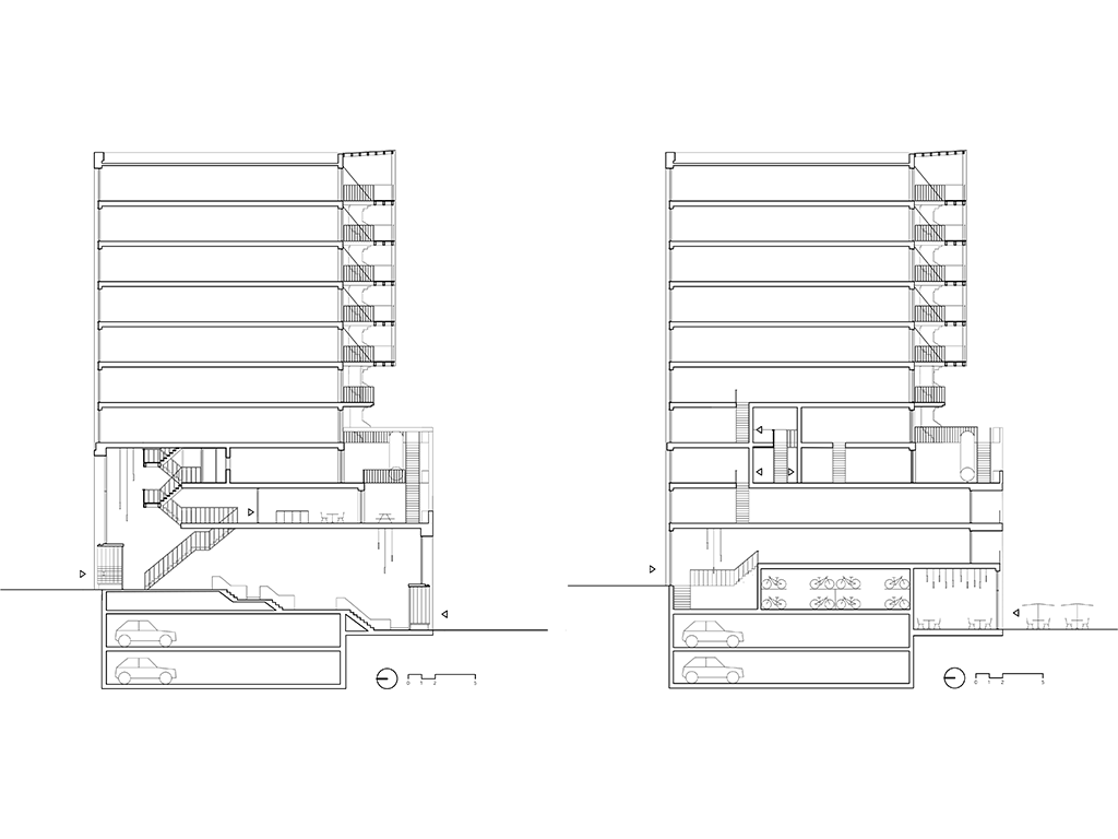
Cornelis sluit direct aan op De Bewegende Stad, het gemeentelijke programma waarin bewegen een vanzelfsprekend onderdeel is van stedelijk leven. Het gebouw maakt gebruik van het aanwezige hoogteverschil op de locatie – een verschil van drie meter – en vertaalt dat in een netwerk van trappen, hallen en tuinen. Bewegen is hier een spannende vanzelfsprekendheid.
Ook hier staat de wereld van een kind centraal. Zo zijn er zijn er houten glijbanen naast de trappen ontworpen die het hoogteverschil op speelse wijze overbruggen. Zo wordt bewegen letterlijk en figuurlijk een verbindende kracht.
Wonen in de geest van Van Eesteren
Cornelis bouwt voort op het gedachtegoed van Cornelis van Eesteren, ontwerper van het Algemeen Uitbreidingsplan (1943) voor de Westelijke Tuinsteden. Net als toen is er veel aandacht voor licht, lucht en ruimte, maar in Cornelis wordt dit verrijkt met eigentijdse thema’s als natuurinclusiviteit, ontmoeting, gezondheid en sociale inclusie.
De houten ontsluitingsroute door het gebouw verwijst naar de galerijen van de naoorlogse strokenbouw – opnieuw ontworpen als een plek waar kinderen spelen en buren elkaar ontmoeten. De groene traptuin, ontworpen door Dijk & Co, maakt het ideaal van een stad in het groen tastbaar.Dankzij een slim irrigatiesysteem dat regenwater opvangt, blijft de beplanting het hele jaar door levendig.
Materiaal en identiteit
De grijsgroene baksteen, speciaal voor Cornelis ontwikkeld, geeft het gebouw een herkenbare identiteit en symboliseert de diversiteit van de buurt. Binnen en buiten worden verbonden door het gebruik van groene Dolomiet hardsteen, dat terugkeert in de hal en plint van het gebouw. De houten looproutes – opgebouwd uit Azobé, Bamboe en Eiken – versterken de warme, natuurlijke uitstraling.
Meer dan wonen
Cornelis is een gebouw dat verder gaat dan het bieden van woningen. Het is een sociale machine in architectuur, een plek waar bewoners elkaar ontmoeten, bewegen en samenleven op een vanzelfsprekende manier. Met zijn intergenerationele karakter, groene structuur, horeca en maatschappelijke functies geeft het gebouw vorm aan een nieuwe manier van stedelijk wonen – één die de sociale samenhang in de stad versterkt en toekomstbestendig wonen mogelijk maakt. Kortom, Cornelis houdt kinderen in de stad.
| Oplevering | 2025 |
| Opdrachtgever | BuildingforLife, ProsperVitae, Heutink Groep |
| Constructeur | Van Rossum |
| Adviseur installaties | Techniplan |
| Bouwkunding aannemer | Heutink Groep |
| Fotograaf | Max Hart Nibbrig, Andreas Secci |