Poppies
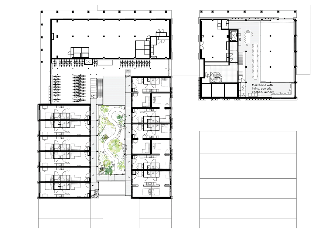
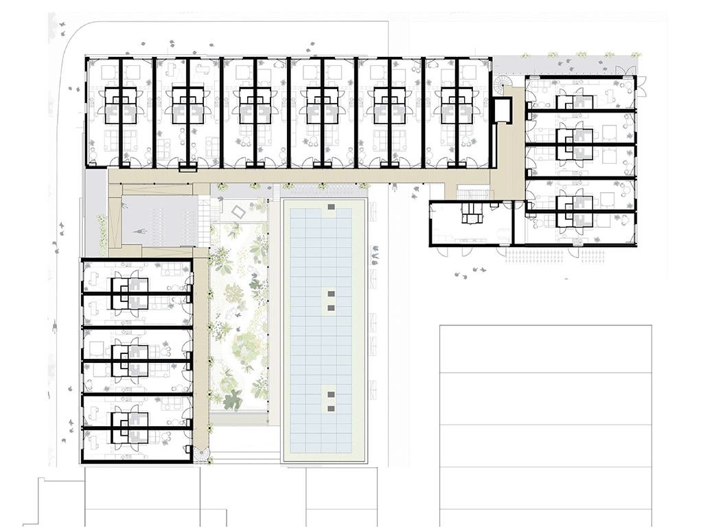
In Buiksloterham, Amsterdam-Noord, is iets bijzonders tot stand gekomen. Op de hoek van de Klaprozenweg en de Ridderspoorweg heeft MaMa Pioneers het project Poppies opgeleverd: een bijna volledig houten gebouw, opgebouwd uit kant-en-klare modules die per vrachtwagen vanuit een Duitse fabriek naar Buiksloterham zijn vervoerd.
Meer dan honderd nieuwe bewoners uit alle windstreken hebben hun intrek genomen in een van de volledig uit hout opgetrokken appartementen in het middeldure huursegment. Duurzaamheid, betaalbaar wonen, sociale cohesie dmv gedeelde ruimtes, diensten en community events gaan hier hand in hand in een toonaangevend nieuw project dat wij u graag laten zien.
Met Poppies wil MaMa Pioneers vol inzetten op industrieel vervaardigde, modulaire houtbouw als oplossing voor de crisis op de woningmarkt en de klimaatverandering. Poppies is een revolutie op het gebied van modulair, prefab bouwen in massief hout (Superwood) en het creëren van wooncommunities met sociale cohesie.
MaMa Pioneers ontwerpt, bouwt, bezit en beheert een netwerk van klimaatpositieve gebouwen, geworteld in Amsterdam. Deze fungeren als katalysator in de buurt en brengen een on- en offline gemeenschap samen via gedeelde, innovatieve voorzieningen en diensten. MaMa Pioneers streeft naar het creëren van sociale cohesie binnen woonomgevingen, door middel van vernieuwende gedeelde faciliteiten en on- en offline services. Het bedrijf heeft grote ambities om (inter)nationaal verder uit te breiden. Robin Wood in IJburg is in aanbouw; Tic Tac Toe, Zuidas en Bovisa, Milaan, zijn in ontwikkeling; daarnaast worden locaties in Lissabon, Londen en Madrid verkend.
MaMa Pioneers is een joint venture van Marc Koehler, Edwin Oostmeijer, Renz Millenaar, Andy Kloppenburg en CommonWealth Investments.
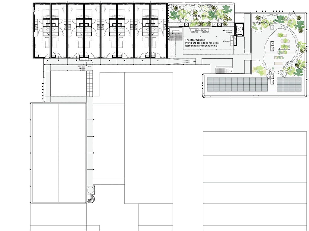
Plaatsing van 3D modules in 2 maanden tijd. Fabrieksmatig geproduceerd kruislings verlijmd hout (CLT), met een EPC= -0.34, MPGScore 1 0,96 (€/m2BVO), C02 besparing van 1800 ton, 50% hernieuwbaar & gerecycled materiaal, Rainproof Amsterdam & Natuurinclusief. De MaMa shared spaces zijn onder anderen een co-work, lounge, keuken, ontmoetingsruimte, gameroom, washok, binnentuin, dakterras en een daktuin.
| Oplevering | 2025 |
| Opdrachtgever | MaMa Pioneers |
| Constructeur | Marc Koehler Associates + VDNDP |
| Bouwkunding aannemer | Van Bekkum Bouwonderneming BV, Derix Group, Prince Cladding, Van Ginkel, Bigbrands, Flos, Miele, Chainable, Hupkes Wijma, Salto, Bring-me, Innax. |
| Fotograaf | Arts eMotion |